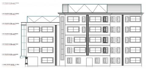
LOCATION: LEKKI LAGOS, NIGERIA
PROJECT TYPE: SELF CATERING APARTMENT
PROJECT ROLE: Design , Detailing & Execution
DELIVERED: Presentation and Construction Drawings that includes 3D, Plan ,Sections, Elevations ,Mechanical and Electrical layouts and Details.
STATUS: PROPOSED PROJECT




